STEPHANOISE maison à étage de 3 chambres avec deux garages

Cette magnifique maison moderne à l'étage vous charmera avec son vaste espace de vie très lumineux donnant sur une terrasse couverte. Une belle suite parentale avec son dressing et sa salle d'eau privative. A l'étage vous trouverez deux grandes chambres avec placards, un bureau, une salle d'eau avec rangement et un wc séparé. Très belle superficie également pour le garage dans lequel vous pourrez stationner deux véhicules. Le plus pour cette maison, un studio avec son accès totalement indépendant ! Pour vous assurer un confort de vie et conformément à la RE2025, nous avons choisi un mode de chauffage par PAC + plancher chauffant, volets roulants électriques. Prix hors décoration, frais de notaire, raccordements, dommage ouvrage.

148 m2

3 ch

2 salles de bain

2 garages

Nous contacter pour cette maison

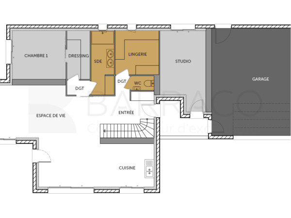
Plan(s) de la maison STEPHANOISE

Plan (maison 229)
Plan (maison 229)

Les + de la maison STEPHANOISE

Mais au fait on parle, on parle, mais avez-vous pensé
à commencer votre projet ?

Visites virtuelles 360°

Découvrez nos visites virtuelles 360° HD et explorez l’intérieur de nos maisons modernes. Naviguez de pièce en pièce, appréciez les volumes, les aménagements et les finitions de chaque espace. Une expérience immersive qui vous permet d’imaginer votre future maison neuve, depuis chez vous.

Toutes les visites virtuelles
Visites virtuelles 360°
MC1643BA - Stephanoise_Avant.jpg

Cette maison vous intéresse ?

Pour estimer le coût de construction de ce projet de maison, plus de renseignements ou prendre rendez-vous, remplissez le formulaire ci-dessous

Les champs marqués(*) sont obligatoires.