MEZOS maison à étage de 5 chambres avec un garage

Vous serez séduits par cette maison d'achitecte, très beaux volumes, 240 m² habitables avec garage de 36 m² environ. Au rez-de-chaussée, une entrée vous conduit à un espace à vivre de 77 m² avec cuisine US et cellier attenant ; deux très belle suites privées dont chacune avec salle de bains et dressing et un bureau. A l'étage,un très grand palier dessert Pour vous assurer un confort de vie et conformément à la RE2025, nous avons choisi un mode de chauffage par PAC + plancher chauffant, volets roulants électriques. Prix hors décoration, frais de notaire, raccordements, dommage ouvrage.(Piscine non contractuelle et non comprise dans le prix).

240 m2

5 ch

3 salles de bain

1 garage

Nous contacter pour cette maison

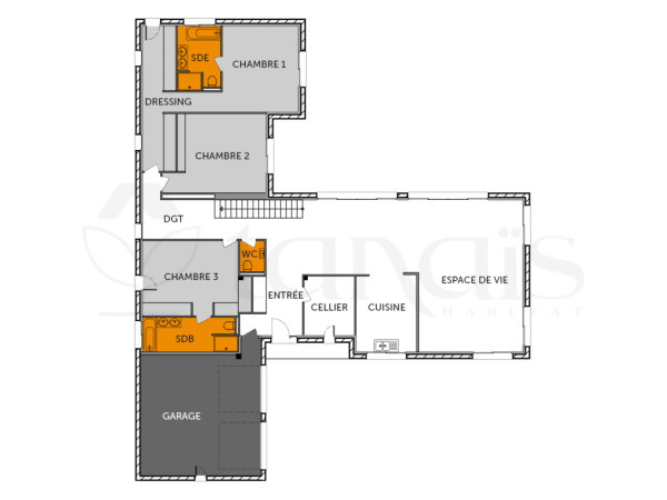
Plan(s) de la maison MEZOS

Plan (maison 221)
Plan (maison 221)

Les + de la maison MEZOS

Mais au fait on parle, on parle, mais avez-vous pensé
à commencer votre projet ?

Visites virtuelles 360°

Découvrez nos visites virtuelles 360° HD et explorez l’intérieur de nos maisons modernes. Naviguez de pièce en pièce, appréciez les volumes, les aménagements et les finitions de chaque espace. Une expérience immersive qui vous permet d’imaginer votre future maison neuve, depuis chez vous.

Toutes les visites virtuelles
Visites virtuelles 360°
TS1735_MEZOS_Arriere.jpg

Cette maison vous intéresse ?

Pour estimer le coût de construction de ce projet de maison, plus de renseignements ou prendre rendez-vous, remplissez le formulaire ci-dessous

Les champs marqués(*) sont obligatoires.