Nos plans de maison à télécharger gratuitement

Vous avez le projet de faire construire une maison ? La construction d'une maison implique d'acheter en même temps le terrain qui accueillera votre futur foyer. C'est pourquoi Barraco Construction vous propose un outil personnalisé d'offres de maison et de terrain à acquérir. Grâce à cet outil, vous pouvez mieux préparer votre achat et vous projeter dans votre nouvel habitat.

9 plans de maison correspondent à votre recherche

vos filtres

Notre accompagnement pour la recherche de votre terrain et la construction de votre maison individuelle

Barraco Construction vous permet de trouver votre bonheur en foction de nombreux critères de recherche : votre localité, votre superficie recherchée, votre budget... Envie d'un grand jardin ? De plusieurs chambres pour accueillir toute votre famille ? La recherche de Maison est simple pour accéder directement à une sélection d'offres correspondant à vos critères.

Vous visualisez clairement le prix du terrain ainsi que le prix de la maison. Les conseillers de Barraco Construction vous accompagnent ensuite pour vous aider tout au long de votre projet.


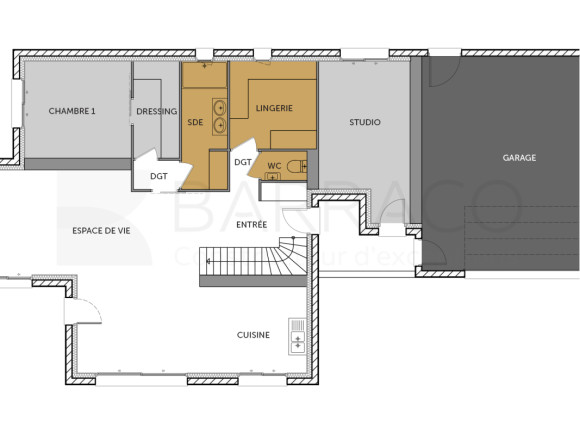
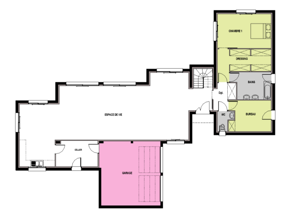
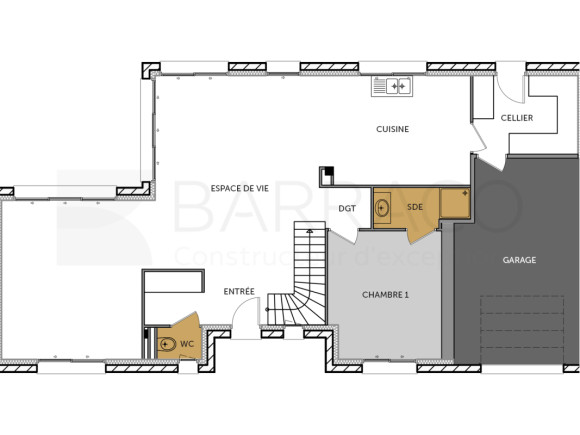
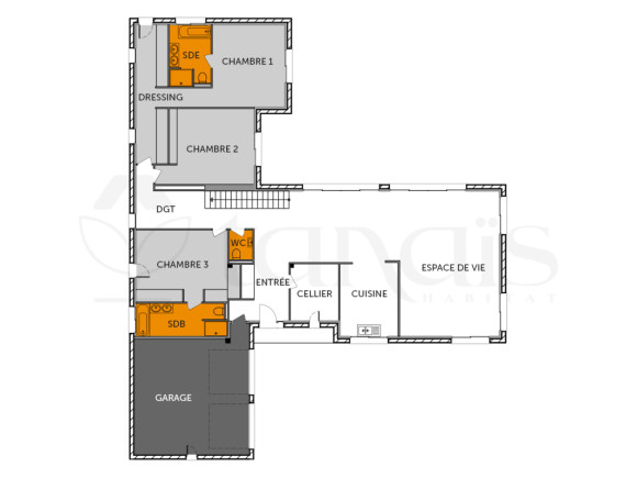
Ce plan de maison vous inspire ?

Pour débuter votre projet, inspirez-vous de nos plans de maison en téléchargement.

Les champs marqués(*) sont obligatoires.